Полезное
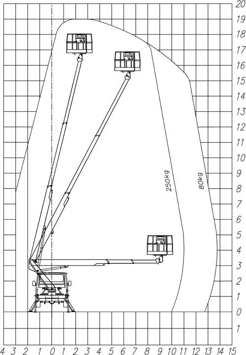
Для оптимального подбора автовышки, воспользуйтесь схемами, приведенными ниже:
Телескопическая вышка 18 метров

Коленчатая вышка 22 метра

Телескопическая вышка 22 метра

Коленчатая вышка 28 метров

Телескопическая вышка 32 метра

Схема работы автовышки на фасаде
